BEISPIEL 1: KAPITALANLAGEN

Basisdaten

 

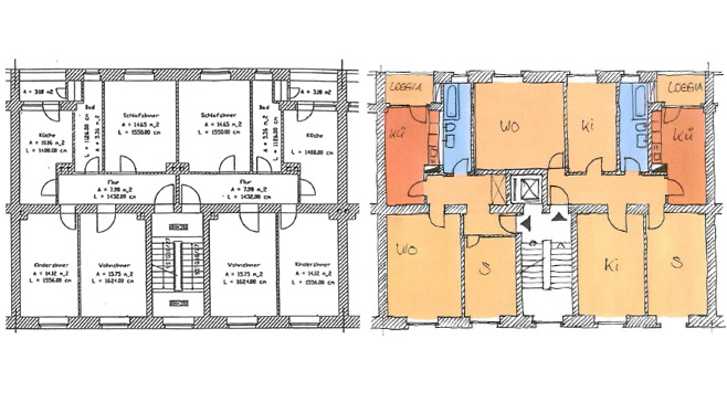
   Mehrfamilienhaus: 700 m² Wohnfläche auf 5 Etagen

 

   Struktureller Leerstand

 

   Kein nachfragegerechter Grundriss

 

   Kein Aufzug

 

 

Leistungen

 

   Grundrissoptimierung

 

   Aufzuginstallation, Badmodernisierung

 

   Aufwertung der Allgemeinflächen

... weiter zu Beispiel 2

Wir haben Ihre Ziele stets vor Augen. Wir beraten Sie individuell und kompetent.

Rufen Sie uns an: 0221/27 66 775 oder per E-Mail: info@schorn-consult.de

Kontakt

Datenschutzerklärung

Impressum